
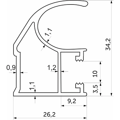
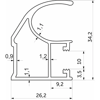
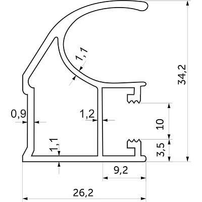
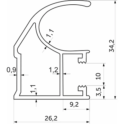
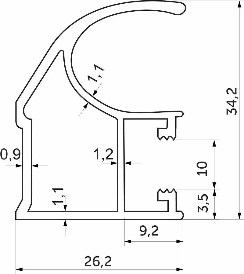
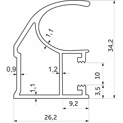
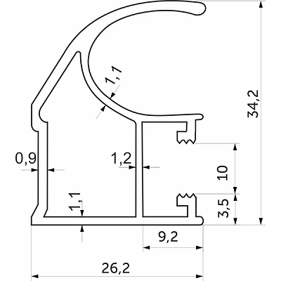
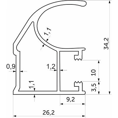
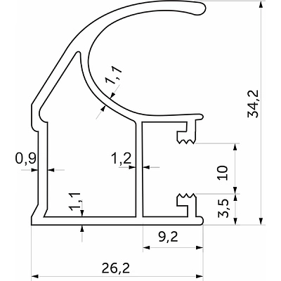
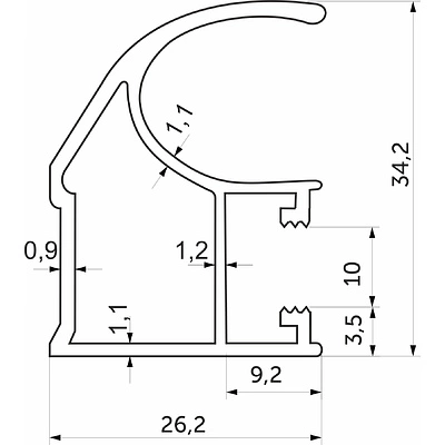
Данный профиль является как декоративным, так и функциональным элементом, защищает торцы дверного полотна от соприкосновения с боковыми стенками шкафа и дополнительно фиксирует ЛДСП, зеркало, стекло, другие декоративные элементы. Имеет только односторонний захват.